Graphic Design
Architecture
Artwork
Contact
Graphic Design
Architecture
Artwork
Contact
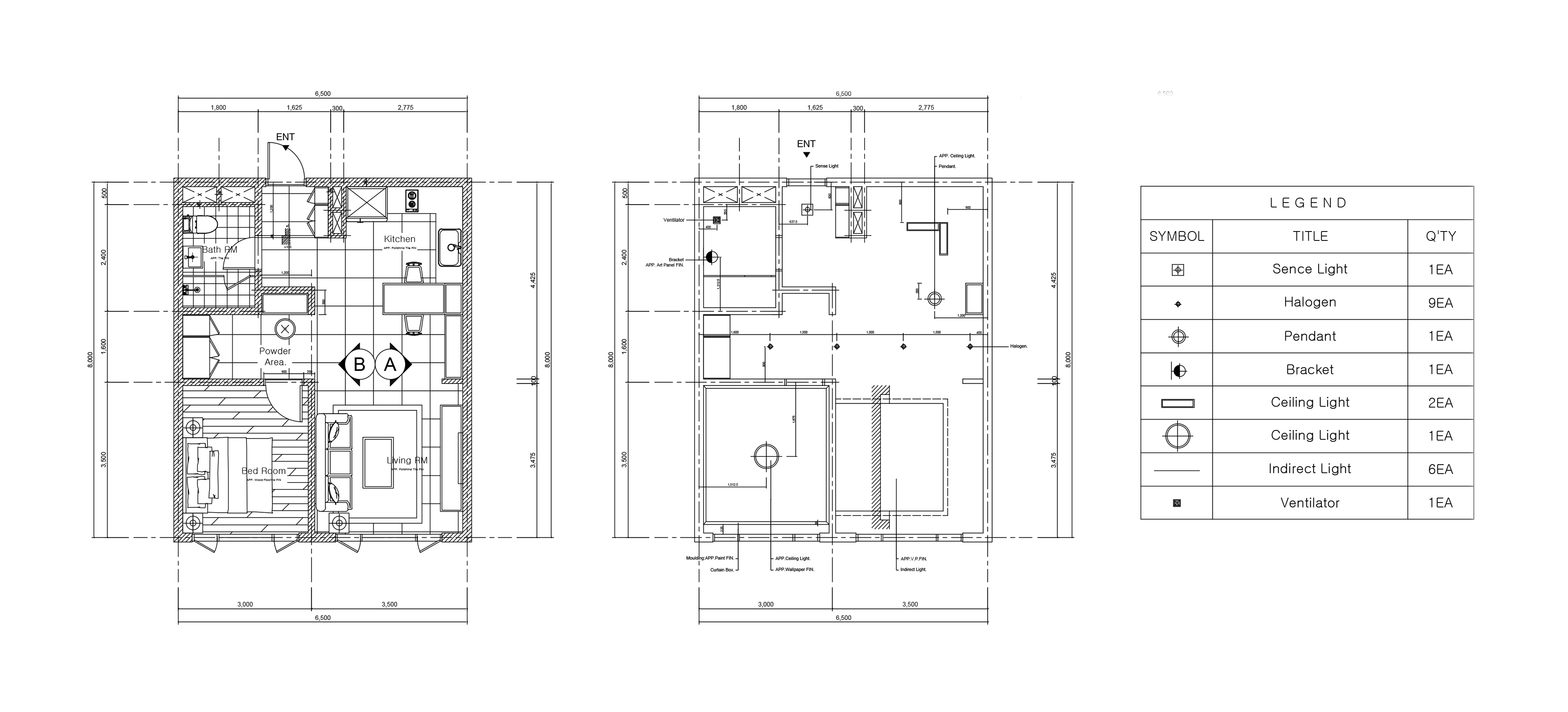
1 Bedroom Floor Plan, Reflected Ceiling Plan
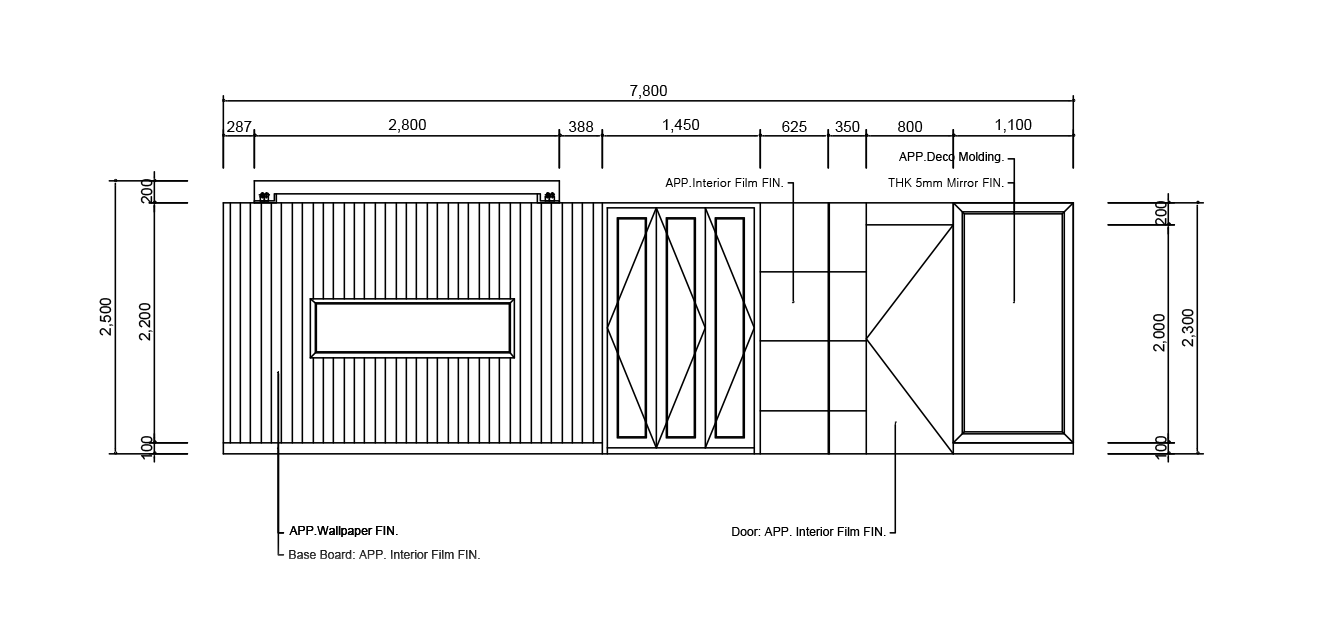
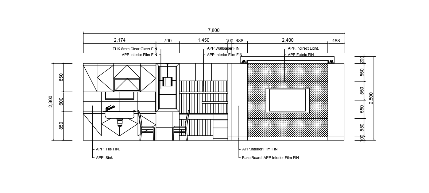
Wall A
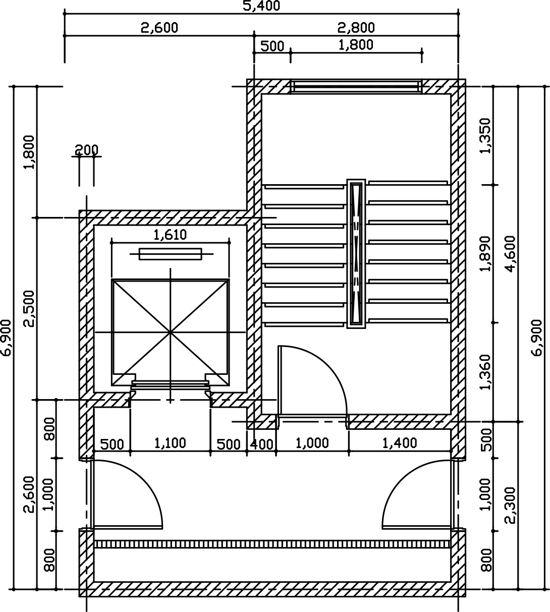
Wall B
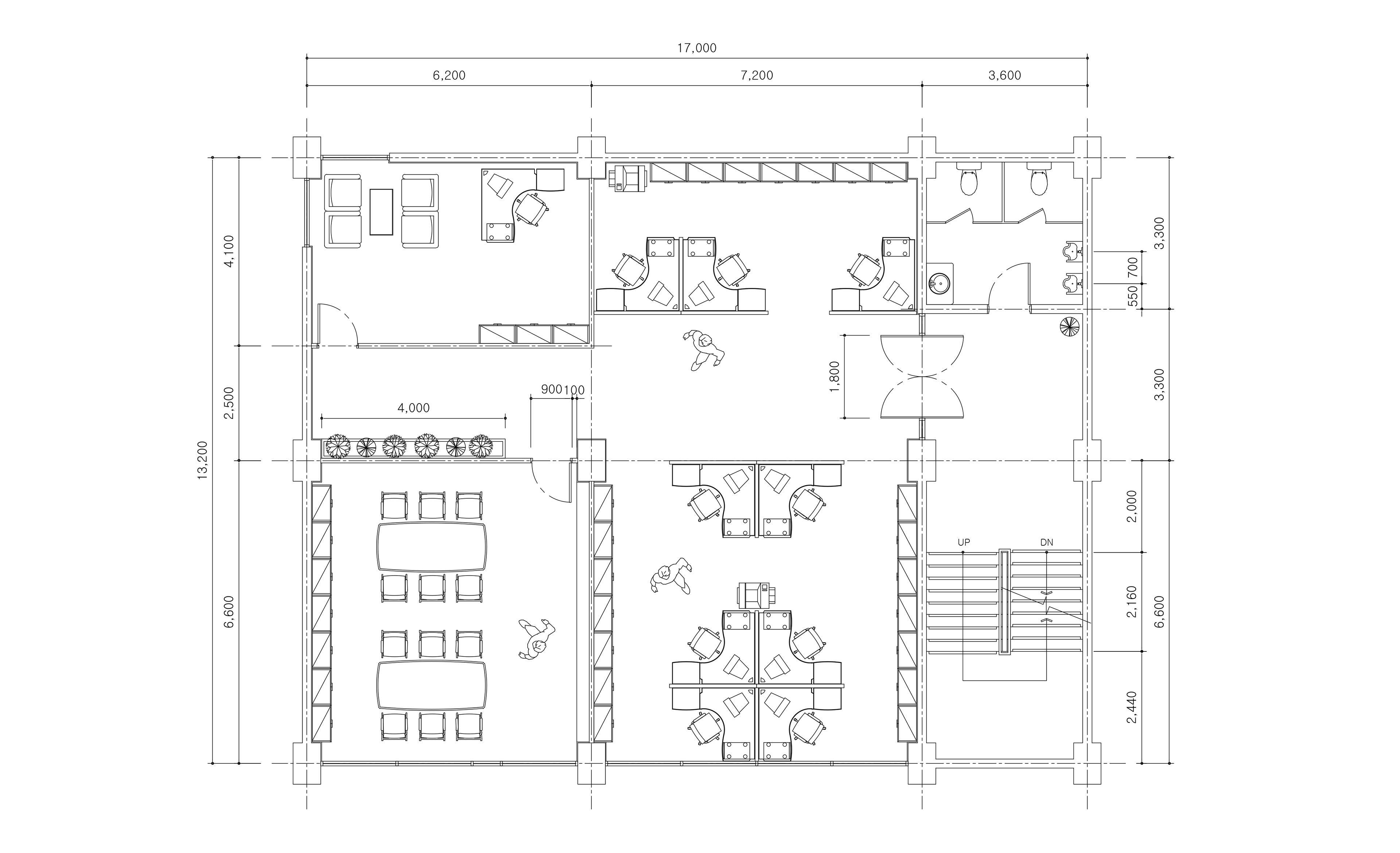
Office Floor Plan
Elevator Plan
House Drawing
Tower Drawing
You may also like
Flood Protection Proposal
Site Analysis II
Site Analysis
Student Learning Center
Pavilion Design
↑
Back to Top